Warning: count(): Parameter must be an array or an object that implements Countable in /var/www/wusr26143/www/main.php on line 98
  • Dorfstraße 29, 39054 Klobenstein (BZ)
Ritten · Lengstein

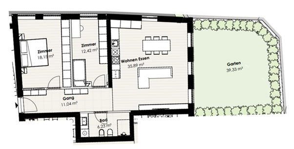
Attraktive 3-Zimmer-Wohnung mit Garten

Diese moderne Neubauwohnung in Lengstein am Ritten befindet sich im Erdgeschoss und bietet zwei großzügige Schlafzimmer, ein Badezimmer, einen weitläufigen Wohn- und Essbereich sowie eine praktische Speisekammer. Ein Kellerabteil gehört ebenfalls zur Immobilie.
Hochwertige Materialien sorgen für ein angenehmes Wohngefühl: Ein geölter Eichen-Vollholzboden schafft eine warme Atmosphäre, während die Fußbodenheizung über eine moderne Wärme-/Kälte­pumpe betrieben wird. Auf dem Dach befindet sich eine gemeinschaftliche Photovoltaikanlage, die unter anderem den Aufzug und die Allgemeinbereiche mit Strom versorgt. Die Wohnung ist bequem per Aufzug erreichbar. Dreifach verglaste Fenster und die Bauausführung nach Klimahaus-A-Nature-Standard gewährleisten höchste Energieeffizienz und Wohnkomfort.
Die Wohnung wird schlüsselfertig übergeben und ist ab Winter 2025 bezugsbereit. Es handelt sich um eine freie, nicht konventionierte Wohnung, die als Zweitwohnung genutzt werden kann.
 
Freie Zweitwohnung
Lage / Ort
Lengstein
Objekttyp
Drei-Zimmer-Wohnung
Klimahaus
A Nature
Heizung
Wärme-/Kältepumpen - Technologie
Wohnfläche
83,73 m²
Zimmer
2 Schlafzimmer
Bäder
1
Garten
ca. 40 m²
Keller
ja
Aufzug
ja
Preis
385.000 € + Kaufnebenkosten
Baujahr
2025
Pläne & Bilder
Panorama Immobilien
Martina Verspohl-Gross
  • +39 348 22 19 471
  • MwSt Nr. 02939400210
Alexandra Gross
  • +39 347 905 28 16
  • MwSt Nr. 02938630213
  •  
  • Dorfstraße 29
  • 39054 Klobenstein am Ritten
  • Bozen / Südtirol