Warning: count(): Parameter must be an array or an object that implements Countable in /var/www/wusr26143/www/main.php on line 98
  • Dorfstraße 29, 39054 Klobenstein (BZ)
Ritten · Lengstein

Geräumige und lichtdurchflutete 4-Zimmer-Wohnung auf zwei Ebenen

· Schlüsselfertig - Übergabe im Winter 2025

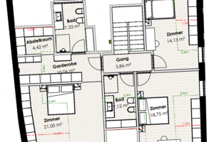
Diese außergewöhnlich großzügige und helle Wohnung erstreckt sich über zwei Etagen und bietet mit rund 200 m² Fläche eine offene, einladende Atmosphäre, die durch zahlreiche Fenster und viel Tageslicht besonders zur Geltung kommt. Im unteren Geschoss befinden sich der Eingangsbereich, ein Gäste-WC, der Wohn-, Ess- und Kochbereich, eine Speisekammer sowie ein Balkon. Das obere Stockwerk umfasst drei weitläufige Schlafzimmer, zwei große Bäder, einen Abstellraum sowie zusätzlichen Platz im Unterdach, der wertvollen Stauraum bietet. Ein eigener Keller ist ebenfalls im Preis inbegriffen.

Die Wohnung verfügt über einen geölten Eichen-Vollholzboden, während die Fußbodenheizung über eine moderne Wärme- und Kälte­pumpe betrieben wird. Auf dem Dach befindet sich eine Photovoltaikanlage für das gesamte Kondominium, welche unter anderem den Aufzug und die gemeinschaftlichen Bereiche mit Strom versorgt. Die Wohnung ist bequem per Aufzug erreichbar. Dreifach verglaste Fenster und die Ausführung nach Klimahaus-A-Nature-Standard garantieren höchste Energieeffizienz und Wohnqualität.
Erstwohnung, konventioniert
Lage / Ort
Lengstein
Klimahaus
A Nature
Heizung
Wärme-/Kältepumpen - Technologie
Wohnfläche
199 m²
Zimmer
3 große Schlafzimmer
Bäder
3
Balkon
ja
Keller
ja
Garage
extra
Aufzug
ja
Preis
675.000 €
Baujahr
2025
Pläne & Bilder
Panorama Immobilien
Martina Verspohl-Gross
  • +39 348 22 19 471
  • MwSt Nr. 02939400210
Alexandra Gross
  • +39 347 905 28 16
  • MwSt Nr. 02938630213
  •  
  • Dorfstraße 29
  • 39054 Klobenstein am Ritten
  • Bozen / Südtirol